Step by Step House Construction - Columbia City, Indiana

Diary of a House Construction-The Dream by Dream Description-Month 1

Welcome to (*Fake Name): "#1 Woodcock Wolde"

Select a Month: 1, 2, 3,4


Step 1 - Pick a spot that you enjoy seeing day after day:
Step 2 - Build a lane to that special spot (planning and praying is good).
Step 3 - Get Approval for a New Construction Loan.
Step 4 - Hire an inspired and reliable contractor (K.G. Structures, Columbia City,IN).

Click on picture to see larger version.

Pictures taken Spring & Summer 2001.
===============================
Metzger Pond-Columbia City

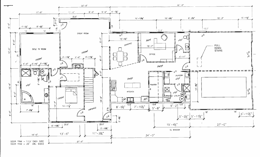
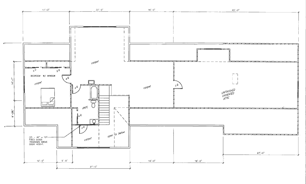
Upper Floor Plans ...................... Main Floor Plans

Dedication

Nancy & Joe

Outside the Church

Love

Micci and Jesy

Batten Boards in Place

Level

Footer1

Footer2

Footer3

Sand and Water

Plumbing & Sand

Fittings

Pour Here

Box-O-Beach

Future Garage

Furnace Runs

Slab1

Slab2

Slab3

Slab4

Slab5

New Adventures

Lower Walls1

Lower Walls2

Lower Walls3

Lower Walls4

UpperFloor1

UpperFloor2

UpperFloor3

Marge at Garage

View Living Room

Overview June 13

Emerging Cecropia

June 14

From Road

June 15

Margaret and Moose

At roadside

June 18

Finishing roof frame

June 19

Your prayers are needed at this point. Cash too if you feel extravagant. :) :)
*We have a house name.. But send your suggestions to e-mail address below..
Send e-mail. Wow... Last revised: 2001